本文
No.188(五料)
松井田妙義ICにアクセス良好な立地です。
敷地は363坪とゆとりのある広さで、家庭菜園やガーデニングが楽しめます。
	敷地は363坪とゆとりのある広さで、家庭菜園やガーデニングが楽しめます。












※画像をクリックすると拡大表示されます。
詳細情報
| 地域 | 臼井・坂本地区 
 | 
			
|---|---|
| ナンバー | 188 
 | 
			
| 所在地 | 五料 
 | 
			
| 
					 | 
			|
| 売買価格 | 650万円 
 | 
			
| 賃貸価格 | |
| 取引形態 | 売買 
 | 
			
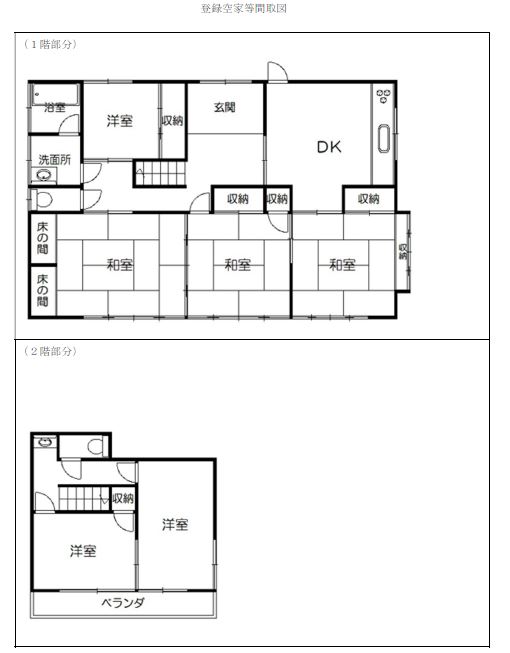
| 間取り | 6DK 
 | 
			
| 詳細間取り | 1階:和室(8畳×2、10畳×1)・洋室(4.5畳×1)・台所・風呂・トイレ、2階:(5畳×1、6畳×1)・トイレ 
 | 
			
| 種類 | 専用住宅 
 | 
			
| 敷金・礼金 | |
| 構造 | 木造 
 | 
			
| 総階数(地上) | 2階 
 | 
			
| 延べ床面積 | 137.04平方メートル/41.45坪 
 | 
			
| 土地面積 | 1200.93平方メートル/363.28坪 
 | 
			
| 建築年 | 35年 
 | 
			
| 補修の要否 | 必要 
 | 
			
| 電気 | 引込済み 
 | 
			
| ガス | プロパン 
 | 
			
| 風呂 | 灯油 
 | 
			
| 水道 | 上水道 
 | 
			
| 下水道 | 浄化槽 
 | 
			
| トイレ種類 | 水洗式・洋式 
 | 
			
| 駐車場 | 有り(3台) 
 | 
			
| 通学区 | 小学校:2,700メートル 中学校:2,200メートル 
 | 
			
| 設備 | |
| 交通 | 西松井田駅まで1.7キロメートル(車で4分)、北陸新幹線安中榛名駅まで13.7キロメートル(車で19分) 
 | 
			
| 備考 | |
| 物件名称 | 188 
 | 
			
| 登録日 | 2025年7月24日 
 | 
			
| 更新日 | 2025年7月24日 
 | 
			
| 取扱登録事業者 | 株式会社 Liv art 電話:027-381-5703 
 | 
			



