本文
No.191(西野牧)
陽当たり眺望良好
建物修繕が必要です
建物修繕が必要です












※画像をクリックすると拡大表示されます。
詳細情報
地域 | 臼井・坂本地区
|
---|---|
ナンバー | 191
|
所在地 | 西野牧
|
|
|
売買価格 | 150万円
|
賃貸価格 | |
取引形態 | 売買
|
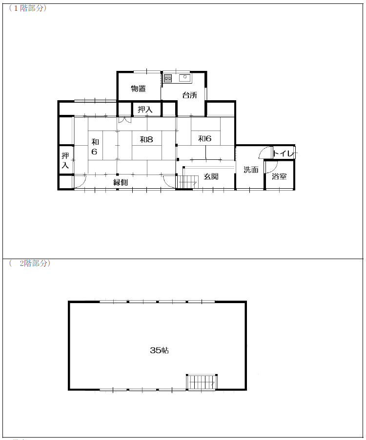
間取り | 4DK
|
詳細間取り | 1階:和室(6畳・8畳・6畳)・DK・風呂・トイレ・2階:蚕室35畳
|
種類 | 専用住宅
|
敷金・礼金 | |
構造 | 木造
|
総階数(地上) | 2階
|
延べ床面積 | 156.19平方メートル/47.25坪
|
土地面積 | 784平方メートル/237.16坪
|
建築年 | 1948年
|
補修の要否 | 必要
|
電気 | 引込済み
|
ガス | プロパンガス
|
風呂 | ガス
|
水道 | 上水道
|
下水道 | 浄化槽
|
トイレ種類 | 水洗式・洋式
|
駐車場 | 有り(4台)
|
通学区 | 小学校:20.3キロメートル 中学校:19.8キロメートル
|
設備 | |
交通 | 横川駅まで11.2キロメートル(車で18分)、北陸新幹線軽井沢駅まで10.3キロメートル(車で15分)
|
備考 | |
物件名称 | 191
|
登録日 | 2025年10月3日
|
更新日 | |
取扱登録事業者 | 有限会社 カオス不動産 電話:027-363-1204
|